3/25 Wohnen
BAU.WERK
Cleverer Lückenfüller
Viel Platz war nicht. Aber genug, um die Baulücke in einer Basler Blockrandbebauung mit einer Büro- und fünf Wohneinheiten zu schliessen.
Text Susanne Lieber | Fotos Roman Keller | Pläne Hildebrand Studios
Die Bebauung schmaler Baulücken ist eine besonders grosse Herausforderung für Architektinnen und Architekten. Schliesslich gilt es bei der Grundrissgestaltung, der Fläche – und mag sie noch so klein sein – möglichst viel «Raum» abzuringen. Am Ende muss sich ein Bauprojekt auch irgendwie rechnen. Das enge Korsett an Baugesetzen macht die Sache dabei nicht leichter. Es sei denn, man macht sich diese clever zunutze. Ein Blick nach Basel in die Zürcherstrasse …
Etwas über acht Meter war die Baulücke breit, die in der Blockrandbebauung an der viel befahrenen Zürcherstrasse klaffte. Nicht winzig, aber auch nicht sonderlich gross. Zuvor hatte dort ein zweigeschossiger Bau gestanden: das Elternhaus des Bauherrn, der dort aufgewachsen ist. Im Hinterhof betrieb der Vater eine Schreinerei. Beides wurde 2023 abgerissen, zugunsten eines Ersatzneubaus.
Einfach Konkurrenzlos
Dass die Baulücke mit einem Holzbau geschlossen werden sollte, stand für die Bauherrschaft und das Zürcher Architekturbüro Hildebrand Studios von Anfang an fest. Die Vorteile des Baumaterials? Hinreichend bekannt. Thomas Hildebrand, Architekt und Gründer des Büros, präzisiert dennoch, warum er und sein Team einmal mehr eine Holzkonstruktion favorisierten: «Holz ist ökologisch, nachhaltig, riecht gut und altert schön – das sind Qualitäten, die eben nur Holz hat.» Thomas Hildebrand ist schon lange vom natürlichen Baumaterial begeistert und macht sich stark für dessen Nutzung in der Architektur (siehe Box, S. 25).
Begeistert und fasziniert ist der Architekt aber nicht nur von Holz – auch Japan hat es ihm angetan. Was ihn übrigens mit dem Bauherrenpaar verbindet. Architekt und Auftraggeber kannten sich bereits über eine
Kunstgalerie in Tokio. Und so erstaunt es nicht, dass der Ersatzneubau einige Merkmale aufweist, die auch in der modernen fernöstlichen Baukultur verankert sind: effiziente Raumnutzung, minimalistisch-funktionale Gestaltung und natürliche Materialien.
Hoch, leicht, raffiniert
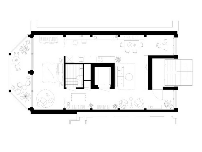
Sieben Geschosse umfasst der besagte Neubau, der damit seine Nachbargebäude um ein Attikageschoss überragt. Im Erdgeschoss befindet sich ein Atelier, und über die obersten zwei Geschosse erstreckt sich eine Maisonettewohnung. Dazwischen liegen vier Etagenwohnungen mit jeweils gleichem Grundriss: Die Wohnfläche (ca. 80 m2) ist offen gestaltet und legt sich um einen zentralen Infrastrukturkern mit Aufzug, Bad und Reduit. An der Längsseite des Kerns ist die Küchenzeile platziert. Ein geräumiger Balkon auf der Nordseite, Richtung Hof, erweitert den Wohnraum nach aussen.
Während das Unter- und das Erdgeschoss aus Brandschutzgründen in Massivbauweise erstellt sind, bestehen sämtliche Obergeschosse aus Holz. Diese wurden von der Häring AG aus Eiken (AG) errichtet. Bezüglich der unterschiedlichen Bauweisen – Beton versus Holz – zieht der Architekt dabei einen verblüffenden Vergleich: «Wir haben berechnet, dass der Beton der beiden unteren Geschosse genauso viel wiegt wie alle sechs Obergeschosse zusammen.» Was einmal mehr erklärt, worin einer der bedeutendsten Vorteile von Holzbauten liegt: im Gewicht.
Konstruktiv basiert die hölzerne Gebäudestruktur auf insgesamt zwölf durchgehenden Stützen aus Brettschichtholz, die sich entlang der Aussenwände zu den Nachbarn verteilen und zusammen mit Massivholzträgern die Brettstapelholzdecken tragen. Vertikal verbunden sind die einzelnen Geschosse durch den Liftschacht, der ebenfalls in Holz (Brettsperrholz) ausgeführt ist. Wie eine Wirbelsäule zieht sich dieser durch den gesamten Bau. Das Treppenhaus hingegen wurde ausgelagert und verbindet die Etagen strassenseitig. Ermöglicht wurde dies durch die unkonventionelle Auslegung jenes Baugesetzes, das besagt, dass bei der Fassadengestaltung Balkone und Erker erlaubt sind, solange maximal ein Drittel der Fassadenlänge über die Baulinie hinausragt. Die Treppe wurde also hier plangesetzlich wie ein Balkon oder ein Erker gewertet. Ein raffinierter Schachzug, denn so wurde für die Erschliessung kein Platz im Gebäudeinneren verschwendet. Der Treppeneinschub schafft zudem eine Art Lärmpufferzone zur stark befahrenen Zürcherstrasse hin. Die Lärmbelastung auf dieser Gebäudeseite ist aufgrund des Verkehrs so hoch, dass hier ohnehin kein Wohn- oder Schlafraum angrenzen dürfte. Jetzt befinden sich auf der Südseite lediglich zwei kleinere Nischen: Die eine fungiert als Entree zur Wohnung, die andere als Arbeitsbereich. Von hier aus bahnt sich die Sonne ihren Weg in die Wohnung, die ansonsten nach Norden ausgerichtet ist.
Auch beim Innenausbau lag der Fokus primär auf Holz: Die Brettsperrholzwände sind mit Dreischichtplatten verkleidet und sorgen mit den Sichtholzoberflächen (Fichte/Tanne, unbehandelt) für ein behagliches Ambiente. Lediglich die Wände zwischen den Stützen sind mit Weissputz versehen. Dafür kommt wiederum die Brettstapeldecke in Sichtholzoptik daher, hier jedoch mit feiner Rillenstruktur.
Zusätzliche Trennwände wurden in der Wohnung übrigens keine eingezogen. Jede Etage ist ein räumliches Kontinuum, das aufgrund der Grundrissaufteilung nicht sonderlich viel Stellfläche und Stauraum bietet und daher wohl eher für Minimalisten taugt – und Fans von Marie Kondo, der japanischen Meisterin im Ausmisten. haring.ch
Hildebrand Studios
Gegründet wurde das Zürcher Architekturbüro 1999 von Thomas Hildebrand. Das 20-köpfige Team plant und realisiert inzwischen vor allem Gebäude aus Holz, wobei zum Baumaterial auch Forschung und Lehre betrieben wird. So entstand 2022 die Ausstellung «Touch Wood» in Zürich, zu der auch eine gleichnamige Publikation erschienen ist (ISBN: 978-3-03778-697-0, Lars Müller Publishers). Thomas Hildebrand studierte
Architektur in Biel und London, arbeitete unter anderem in den Niederlanden und in den USA und lehrt heute an der ZHAW in Winterthur am Institut Urban Landscape. Zudem ist er Vorstandsmitglied des Architekturforums Zürich und des ZAZ (Zentrum Architektur Zürich). hildebrand.ch
Das Projekt – die Fakten
Projekt: Townhouse in Basel
Fertigstellung (Erstbezug): November 2024
Bauherrschaft: privat
Totalunternehmen: Häring AG, Eiken (AG)
Architektur: Hildebrand Studios, Zürich
Holzbauingenieur / Brandschutz: Pirmin Jung Schweiz AG, Sursee (LU)
Holzbau: Häring AG, Eiken; Roth Burgdorf AG, Burgdorf (BE)
Konstruktion / Tragwerk: Brettstapeldecke, Stützen aus Brettschichtholz
Holzart und -menge: Fichte / Tanne, Brettsperrholz (44 m3), Brettschichtholz (82 m3)
Gesamtfläche: 690 m2
Besonderheiten: Liftschacht aus Brettsperrholz (CLT)







