04/2018 Ausgezeichnet
Wohn.kultur
Das Mondhaus
Traditionelle Baumaterialien und innovative Technik sind im Mondhaus in Alpnach vereint. Auf Leim, Metall und chemische Baustoffe wurde weitgehend verzichtet, verbaut sind stattdessen Mondholz aus den Obwaldner Wäldern und Lehm aus der eigenen Baugrube.
Text Helen Oertli | Fotos Rasmus Norlander
Alpnach liegt eingebettet zwischen Seen und Bergen, umgeben von Äckern und Wiesen. Nur fünf Prozent des Obwaldner Gemeindegebiets sind Siedlungsfläche, das übrige ist bedeckt von Gehölz und Kulturland. Knapp bemessen ist die Wohnzone für die 5500 Einwohner – in den vergangenen Jahren ist das Dorf stetig gewachsen. Im Wohnquartier Schoried stehen deshalb die Ein- und Mehrfamilienhäuser dicht an dicht. An ihnen lassen sich viele Architekturtrends der letzten vierzig Jahre ablesen. Hoch ragt das Mondhaus dazwischen auf. Der stattliche Bau bezieht sich nicht auf seine nächsten Nachbarn, sondern auf jene traditionellen Obwaldner Bauernhäuser oben am Hang. Das weit auskragende Satteldach, die Reihenfenster mit hölzernen Zugläden und die beiden ausgeprägten Lauben verweisen auf die bäuerlichen Vorbilder.
Die Familie Küng, welche die gleichnamige, ortsansässige Holzbaufirma in dritter Generation führt, hat ihr Wohnhaus im April 2018 fertig gebaut. Gleich zweifach ist nun der Bau mit dem Prix Lignum prämiert worden: mit dem zweiten Rang der Region Zentrum und dem Sonderpreis Schweizer Holz. Hinter dem Entwurf steht das Architekturbüro Seiler Linhart, das in Sarnen und Luzern seine Standorte hat. «Nachdem die grossen Architekturbüros mit zwanzig, dreissig Leuten auf der Bühne standen und wir dann als kleines, fünfköpfiges Team die Preise entgegennahmen – das war schon etwas Besonderes», erzählt der verantwortliche Architekt Søren Linhart vom Abend der Preisverleihung.
ZUHAUSE AM WARMEN OFEN
Die Familie Küng ist in den Ferien. Deshalb übernehmen Architekt Søren Linhart und Adrian Niederberger, Projektleiter bei Küng Holzbau, die Führung durch das Mondhaus. Während aussen das Lokalkolorit dominiert, ist das Innere schlicht gestaltet. Die raumhohen Türen, ein warmer Kastanienholzboden, Fenster aus schlanken Profilen und die eigens gefertigten Möbel sind sorgfältig aufeinander abgestimmt. Noch sind nicht alle Möbel fertig gebaut und alle Kisten ausgepackt. Doch zeugen Velos im Kellereingang, der Hühnerstall im Garten und das gepflegte Salatbeet von einem regen Familienleben. Der wichtigste Ort im Haus ist der lange Holztisch, wo sich zum Mittagessen manchmal auch die Grosseltern dazusetzen, die gleich nebenan wohnen. Auf der Holzbank sitzt man wohlig am warmen Ofen und blickt durch die Fensterfront bei klarem Himmel aufs Stanserhorn.
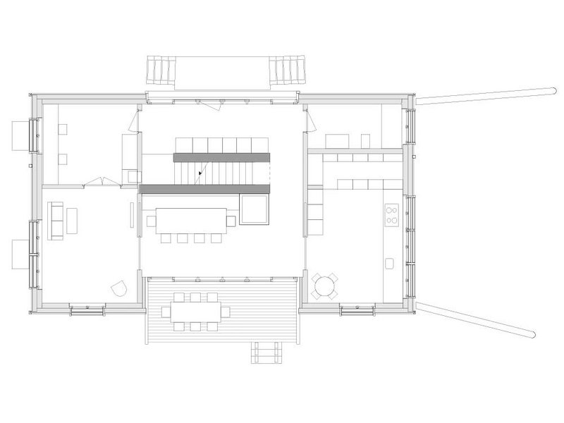
Im Erdgeschoss befinden sich nebst dem Wohn- und Essbereich die Küche, das Gästezimmer und ein Bad. Die Räume sind um einen Erschliessungskern angelegt. Dass man zwischen den einzelnen Räumen verschiedene Wege gehen kann, lässt den Grundriss noch grosszügiger erscheinen. Im zweiten Geschoss ist das Reich der Kinder: ein Schlafzimmer für jedes der drei, ein Badezimmer, gegen Süden und Norden hin eine Laube und dazwischen viel freie Spielfläche, wo der Jüngste mit bunten Legosteinen schon an seinen eigenen Häusern baut. Im obersten Stockwerk unter dem Dachfirst sind das Elternschlafzimmer mit eigenem Bad und das Büro untergebracht, das Regina und Stephan Küng nutzen, wenn Sie von zuhause aus arbeiten.
KIES UND LEHM AUS DER BAUGRUBE
Der Erschliessungskern ist das eigentliche Zentrum des Hauses. Aus dunklem Stampflehm sind die Wände blockweise aufeinandergebaut und vermauert. Sie sind unverputzt, wodurch die einzelnen Schichten sichtbar sind. Gepresster Kies, darüber Sand und Lehm – alles Material stammt aus der Baugrube. Wenn das Sonnenlicht auf einen glatten Kiesel fällt, schimmern die sonst matten Steine.
Möglichst nur natürliche Materialien wollte die Familie Küng für den Bau verwenden – Holz und Lehm, Bambusarmierungen im Betonsockel statt Armierungseisen und selbst die Küche ist leimfrei montiert. In den Nasszellen sind die Wände mit Tadelakt in alter marokkanischer Technik verputzt und die Böden mit Kasein gespachtelt. Bezeichnend für die Verbindung von traditionellen Baustoffen und modernster Technik sind die Fensterläden: Beibehalten wurde die Beschattung mit hölzernen Zugläden, nur müssen diese nicht mehr manuell am Riemen aufgezogen werden, sondern lassen sich elektronisch steuern. Die Taschen, in denen die Läden versenkt werden, sind mit Ornamenten geschmückt. Der Künstler René Odermatt entwickelte aus den Familienwappen fünf verschiedene Muster, schnitzte die Prototypen von Hand und liess die Strukturen auf der CNC-Maschine in die Holzoberfläche fräsen.
DAS HAUS IST EIN EXPERIMENT
Vieles im Mondhaus wurde selber entwickelt, selten eine konventionelle Lösung gewählt und nichts von der Stange gekauft. «Die Ideen spielten wir – Architekt und Holzbauer – einander wie beim Pingpong zu», erzählt Linhart. Sie probierten aus, entwickelten weiter bis es schliesslich funktionierte, erzählt Linhart. Und das auch manchmal zum Leidwesen des Projektleiters, fährt Architekt Linhart fort: «Denn selten wurde die einfachste Lösung gewählt.» Doch dieser winkt ab, schlussendlich sei ja alles aufgegangen, so Niederberger. Das Haus ist ein Experiment und – im weitesten Sinn – auch ein Showroom, wo interessierte Kunden ein Haus aus ökologischen Baumaterialien entdecken können. So wie es Küng Holzbau mit dem eigenen Vollholzsystem aus regionalem Mondholz anbietet.
Mondholz wird um Weihnachten kurz vor Neumond geschlagen. Dann enthalten die Bäume am wenigsten Saft; Pilze und Schädlinge halten sich fern. Weil das Holz danach lange ruhen kann, bis es gut ausgetrocknet ist, verringert sich der Energieaufwand für die Bearbeitung. Dem Mondholz wird nachgesagt, dass es besonders stabil, haltbar und unempfindlich gegen Fäulnis ist. In der Produktionshalle in Alpnach wird das zugeschnittene Holz zu einzelnen Elementen weiterbearbeitet. Adrian Niederberger zeigt in der Werkhalle, die nur ein paar Fahrminuten vom Mondhaus entfernt ist, wie die Vollholzelemente hergestellt werden. 54 Meter lang ist die Produktionsstrasse, die eigens für deren Herstellung entwickelt wurde. Auf der Produktionsanlage schichten Greifer die verschieden langen Bretter kreuzweise auf den Produktionstisch. Öffnungen wie Türen und Fenster werden ausgespart. Dann werden bei den Kreuzungspunkten die Dübellöcher gebohrt und Dübel aus Buchenholz eingepresst. Zum Schluss werden im Bearbeitungszentrum die Konturen gefräst, Öffnungen für die Steckdosen gebohrt und die Verbindungsnuten gekehlt. Die fertigen Vollholzelemente ohne weitere Dämmmaterialien speichern die Wärme und schirmen vor Elektrosmog ab. «Die Monteure waren jedenfalls nicht über das Mobiltelefon erreichbar, wenn sie hier im Haus arbeiteten», erzählt der Projektleiter schmunzelnd.
HOLZBAUER UND ARCHITEKTURBÜRO AUF GEMEINSAMEM ERFOLGSKURS
Auf dem weitläufigen Betriebsgelände rufen die Zimmermänner dem Architekten hier ein «Hoi», da ein «Tschau, Søren» zu. Das Architekturbüro Seiler Linhart arbeitet seit vielen Jahren mit Küng Holzbau zusammen, Linhart ist ein oft und gern gesehener Gast im Alpnacher Betrieb. «Zuerst waren es kleinere Projekt, aber wir haben schnell gemerkt, dass die Zusammenarbeit gut funktioniert», erzählt Linhart. Sie sollten recht behalten. Nachdem 2013 Stephan Küng die Luzerner Architekten mit der Planung der Werkhalle betraut hatte, wurde diese mit dem Regionalpreis des Prix Lignum 2015 ausgezeichnet. Nun steht bereits das nächste Projekt an: Ein viergeschossiges Bürogebäude wird auf dem Gelände gebaut. Der schlanke Gebäudekern steht bereits auf der planierten Fläche. 2019 soll der Bau abgeschlossen sein. Ein Anwärter für den nächsten Prix Lignum?
kueng-holz.ch, seilerlinhart.ch
Das Projekt – die Fakten
Objekt: Einfamilienhaus
Fertigstellung: April 2018
Bauherrschaft: Regina und Stephan Küng, Alpnach (OW)
Architektur: Seiler Linhart Architekten, Luzern und Sarnen
Tragwerk und Bauphysik: Küng Holzbau AG, Alpnach
Gebäudevolumen (SIA 416): 1540 m³
Geschossfläche (SIA 416): 526 m²
Holz: Konstruktionsholz Fichte / Tanne 281,5 m³; Bekleidung 15,5 m³ in Fichte / Tanne und 12 m³ in Kastanie
Wärmeerzeugung: Holzofen, Solarthermie







