03/2020 Ungewohnt
FOKUS.THEMA
Die jungen Wilden
Zwei Tiny-Häuser mischen ein historisches Quartier in Schwyz auf. Sie sind autark, reduziert, nachhaltig konzipiert. Hier wird gelebt – in grossem Stil auf kleinem Raum.
Text Sandra Depner | Fotos Stefan Zürrer | Pläne Marty Architektur AG
Allein optisch lehnen sie sich auf. Sie stechen hervor in dem von traditionellen Bauten geprägten Dorfbach-Quartier in Schwyz. Die Fassade ist dunkel, fast schon Tiefschwarz, von rauer Qualität. Die einander zugewandten Fassaden sind in unbehandeltes Stahl gehüllt, der Rest setzt auf eine vertikale, geschwärzte Holzschalung. Die beiden Holzhäuser markieren den Wandel. Ihre Satteldächer sind vollständig eingedeckt mit Solarzellen, was einen Anschluss ans Stromnetz obsolet macht. Das ist ein wichtiger Aspekt im Konzept vom nachhaltigen und autarken Bauen. Nachhaltigkeit, die bei den Bewohnern nicht Halt macht: In dem Mehrfamilienhaus ist der Wohnraum auf 31 beziehungsweise 42 Quadratmeter reduziert. Wer in einer der neuen vier Wohneinheiten in der Acherhofstrasse einziehen wollte, tat das besser mit wenig Gepäck – da kein Keller – und idealerweise mit Velo statt Auto – da kein Anwohnerparkplatz. Auch hinsichtlich des Umgangs mit Ressourcen weiss das Tiny-House-Konzept aus der Feder der Marty Architektur AG seine Bewohner in Richtung 2000-Watt-Gesellschaft zu lenken.
Das Phänomen «Micro Housing» ist nicht neu. Es steht für kleine Wohneinheiten mit grosser Lebensqualität in einem meist urbanen Umfeld. In Japan nennt man die trendigen Häuser «Moriyama Houses»: 16 bis 30 Quadratmeter grosse, gestapelte Wohnmodule. Aus Amerika kennt man das Tiny House, in dem es mit 45 Quadratmetern etwas mehr sein darf. Wer als Schwyzer in einem Tiny House lebt, der demonstriert Verzicht. Denn laut Bundesamt für Statistik stand in der zuletzt erfassten Bauphase (2016–2018) einem Bewohner des Urkantons eine Wohnfläche von durchschnittlich 49 Quadratmetern zur Verfügung. Tritt nun die Kehrtwende ein? Tiny-House-Konzepte wie jene von Marty Architekten und Kost Holzbau erleichtern den Verzicht auf Raum. Sie geben dem Bewohner ein Stück autarkes, selbstbestimmtes Wohnen zurück, bieten Komfort und das Wissen, dass man einen Beitrag zum Wandel im Umgang mit Ressourcen leistet. Und das für eine Miete von 1100 bis 1300 Franken im Monat – Strom und Heizung inklusive.
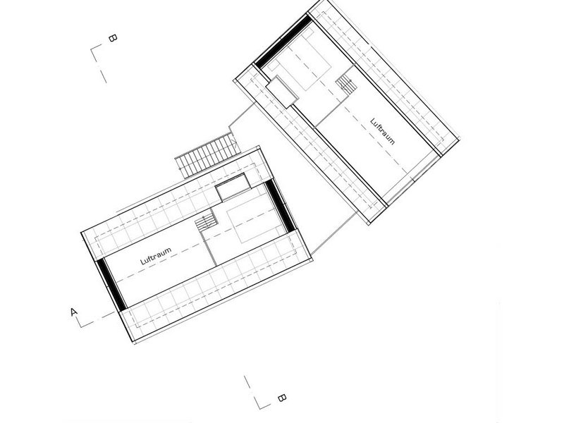
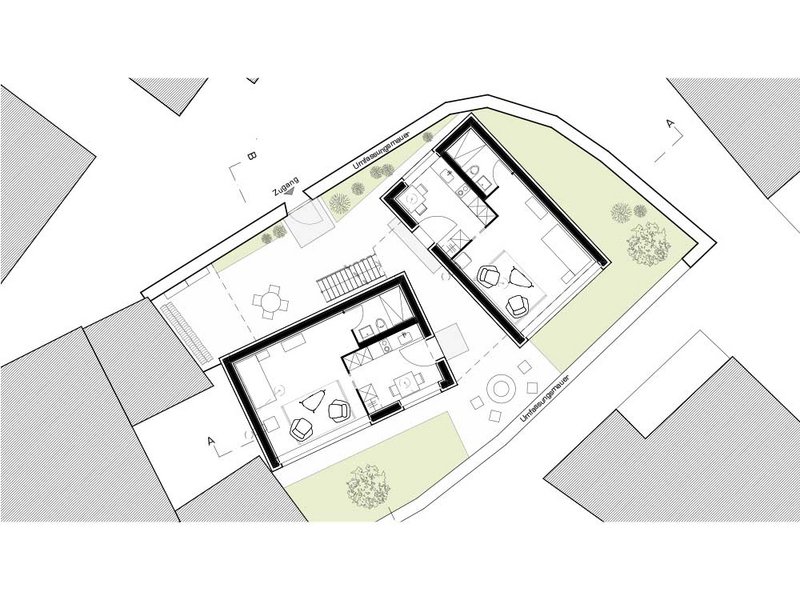
Transformation einer Gartenparzelle
Die Parzelle liegt in der Kernzone von Schwyz – im historischen Dorfbach-Quartier. Es ist Teil des Bundesinventars der schützenswerten Ortsbilder der Schweiz von nationaler Bedeutung, kurz ISOS. Das von einer massiven Umfassungsmauer umgebene Grundstück gehört zu einem nördlich angrenzenden Wohnhaus und wurde bis anhin als Privatgarten genutzt – das entsprach nicht mehr den Bedürfnissen der Bauherrschaft. Und so kam das in Schwyz ansässige Architekturbüro ins Spiel: Die Marty Architektur AG begleitete den Wandel auf der 200 Quadratmeter grossen bebaubaren Fläche von der Projektierung, der Ausschreibung und der Realisierung bis hin zu Fragen rund um die Bewirtschaftung. Ivan Marty und sein Team entwickelten dabei das Wohnmodell in Form der Mikro-Apartments für eine ressourcenschonende Lebensweise im Kern von Schwyz.
Verdichtung nach innen
Geschwungene, schmale Gassen ziehen sich durch das Dorfbach-Quartier. Es sind die klein-
massstäblichen Bauten von historischer Substanz, deren Ursprung teilweise bis ins Mittelalter reicht und die das Ortsbild prägen. Doch das Viertel wandelt sich. So wurde ein Grossteil der Bauwerke in den letzten Jahrzehnten in Form von An- oder Umbauten verändert. Ähnliches ist auf der Gartenparzelle passiert: In Anlehnung an die schweizweite Zielvorgabe der Verdichtung nach innen, sollte das Projekt mit zwei kleinen Bauvolumen die Siedlungsentwicklung unterstützen. Wer in einem ISOS-Gebiet baut, wird zwangsläufig mit hohen Anforderungen an die Eingliederung ins Ortsbild konfrontiert, was eine Gestaltung der Bauwerke in Kooperation mit der Denkmalpflege erforderte. Die eng platzierten Neubauvolumen sind so konzipiert, dass sie durch ihre Setzung, Grösse und Konstruktionsweise die bestehende Siedlungsstruktur respektieren. Gleichzeitig bieten sie spannungsvolle und quartiertypische Aussenräume – wie etwa der gemeinsam genutzte Garten mit Sitzplätzen um den Feuerring. Grosse Fensterfronten ermöglichen einen Bezug zum Umfeld und lassen Tageslicht eindringen.
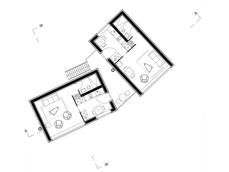
Verdichtung lautet auch das Schlagwort bei der inneren Organisation der energieautarken Holzrahmenbauten. So sind die Innenräume auf das Wesentliche reduziert: Küche, Nasszelle und der Wohnraum, der in den kleineren Parterrewohnungen auch als Schlafraum dient. Die Domizile im Obergeschoss verfügen über eine zusätzliche Schlafgalerie unter dem Dachgiebel. Stauraum in den beiden 42 Quadratmeter grossen Maisonettewohnungen bieten die Treppenstufen zur Galerie: Sie sind tiefer konstruiert als nötig und können so als eine Art Regal verwendet werden.
99,3 Prozent Schweizer Holz
Rund 25 Kubikmeter – so viel Konstruktionsholz kam für beide Tiny-Häuser insgesamt zum Einsatz. Der Holzrahmenbau aus Tanne/Fichte steht auf Breitflanschträgern. Beim Wand-, Dach- und Bodenaufbau setzten die Planer auf verschiedene Formate der Pius-Schuler-Blockholz-Platten. Die formaldehydfreien Massivholzplatten sind in den Wohnungen sichtbar belassen – vom Boden bis zur Decke. Mit ihrer feinen Lamellenstruktur prägen sie den Innenraum. Die Massivholzplatten wie auch das Konstruktionsholz stammen aus der Schweiz – ein Grossteil davon aus den Wäldern der Oberallmeindkorporation Schwyz. So wurden die Schwyzer Tiny-Häuser mit dem Label «Schweizer Holz» ausgezeichnet, da beim Bau 99,3 Prozent Holz aus dem Schweizer Wald zum Einsatz kam.
Ein weiteres wichtiges Kriterium lag in der Entscheidung, welche Baustoffe verwendet werden sollten. Zum Einsatz kamen Materialien mit einem möglich natürlichen Ursprung sowie mit niedrigem grauem Energiewert, die später wieder in den Baustoffkreislauf zurückgeführt werden können. Insgesamt wurde Wert auf einen langlebigen und unterhaltsarmen Betrieb gelegt – wie etwa mit dem unbehandelten Stahl an der Fassade und mit der vorvergrauten Holzschalung aus heimischer Fichte. Grundsätzlich sind die Materialien durch rein mechanische Verbindungen additiv zu einer Konstruktion zusammengefügt, die mit einem Minimum an Klebstoffen auskommt und ein schadstofffreies Innenraumklima garantiert. Auf den Einsatz von Beton wurde nahezu vollständig verzichtet, wie auch auf eine Unterkellerung – und damit auf grössere Erdbewegungen und den Einsatz von Beton im Keller. Die beiden Häuser schweben auf den Stahlträgern über dem gewachsenen Boden, was die Erstellung eines in der Folge CO2-intensiven Fundaments überflüssig machte.
Neben der Bauweise setzt auch das Energiekonzept auf einen schonenden Umgang mit Ressourcen. Die mit Schweizer Steinwolle gedämmte Gebäudehülle senkt den Heizenergiebedarf auf ein Minimum. Muss dann doch mal geheizt werden, liefert der Specksteinofen die erforderliche Wärme. Das Brennholz stammt auch hier aus der Region und ist in der Miete inklusive. Die elektrische Versorgung erfolgt ebenfalls autark. Die über die gesamte Dachfläche gespannte Photovoltaikanlage speichert Überschüsse in dem zentralen Energiespeicher und gibt sie bei Bedarf an die Nutzer frei. Pro Wohneinheit sind 2500 Watt Strom im Mietpreis inklusive. Wer mehr verbraucht, muss dafür bezahlen. Im Vergleich dazu: Der Durchschnittsverbrauch in der Schweiz liegt aktuell bei 5000 Watt pro Bewohner.
Aus Schwyz, für Schwyz
Nicht nur beim Werkstoff Holz wurde auf Regionalität gesetzt. Sondern auch bei den beteiligten Bauunternehmern. Die Marty Architektur AG stammt aus der Gemeinde Schwyz. Das Holzbauingenieurbüro – die Pius Schuler AG – und auch die verantwortliche Holzbauunternehmung – die Kost Holzbau AG – sind im Kanton Schwyz ansässig. Das bedeutet für alle: kurze Wege, schnellere Entscheidungen. Die Bauphase des Holzbaus erfolgte zwischen Ende September 2019 und Anfang März 2020. Die Montage der vorgefertigten Holzbauelemente dauerte nur zwei Tage. Mehr Zeit – drei Wochen – nahm hingegen der Ausbau in Anspruch. Auf engem Raum mussten die Sanitärinstallateure, Elektriker und Zimmerleute koordiniert mit- und nebeneinander arbeiten.
Micro Housing liegt im Trend. Und es war vermutlich nie bequemer. Der Nutzer – sofern er dazu bereit ist – verzichtet auf Raum, nicht jedoch auf einen gehobenen Wohnstandard. Die «jungen Wilden» auf der Gartenparzelle zeigen einen möglichen Weg, innere Verdichtung ästhetisch und wertschöpfend zu realisieren. kost.ch, marty-architektur.ch, pius-schuler.ch
2000-Watt-Gesellschaft
Die 2000-Watt-Gesellschaft stellt ein energiepolitisches Modell dar, das von Wissenschaftlern der Eidgenössischen Technischen Hochschule (ETH) im Rahmen des Novatlantis-Programms entwickelt worden ist. Ziel der 2000-Watt-Gesellschaft ist, Energie und Ressourcen nachhaltig und global gerecht zu nutzen. Das bedeutet, dass der weltweite Energiekonsum nicht zunehmen darf und dass die Treibhausgas-Emissionen so weit reduziert werden, dass sich das Weltklima um höchstens 2 °C erwärmt. Global gerecht heisst, dass jeder Mensch auf der Welt nicht mehr als 2000 Watt Energie-Dauerleistung in Anspruch nehmen und maximal eine Tonne CO2 pro Jahr ausstossen darf.
2000watt.ch
Marty Architektur AG
Die Marty Architektur AG wurde 1998 von Ivan Marty (Foto) gegründet. An beiden Standorten Schwyz und Altendorf sind insgesamt 25 Mitarbeitende sowie drei Lernende (Zeichner/in EFZ Fachrichtung Architektur) und ein Praktikant beschäftigt. Welche Bedeutung nimmt der Baustoff Holz in der Arbeit der Marty Architektur AG ein? Ivan Marty: «Er ist tief in der Siedlungsgeschichte der Zentralschweiz verankert. Im Spannungsfeld zwischen der Tradition und den Anforderungen der Gegenwart entwerfen, planen und bauen wir seit nun mehr als 20 Jahren. Zentral dabei ist für uns der Nachhaltigkeitsgedanke, den wir durch intelligente Detaillösungen, langlebige Materialisierung und zeitlose Gestaltung verfolgen. Der Baustoff Holz passt daher ideal in unsere Philosophie. Die regionale Verfügbarkeit verkürzt die Lieferketten, senkt die graue Energie und steigert die lokale Wertschöpfung.»
Das Projekt – die Fakten
Objekt: zwei Tiny-Häuser mit je zwei Wohnungen
Standort: Schwyz (SZ)
Fertigstellung: 2020
Bauherrschaft: i4m AG, Schwyz
Architektur: Marty Architektur AG, Schwyz
Holzbau: Kost Holzbau AG, Küssnacht am Rigi (SZ)
Holzbauingenieur: Pius Schuler AG, Rothenthurm (SZ)
Baukosten: CHF 940 000 (inkl. MwSt.)
Gebäudevolumen gesamt (SIA 416): 630 m3
Nettogeschossfläche gesamt (SIA 416): 240 m2
Holz: 25 m3 Konstruktionsholz Fichte /Tanne,
Pius-Schuler-Massivholzplatten







