02/2019 Reflektiert
BAU.WERK
Fliessend und flexibel
Das «nolax House» ist ein Haus ohne Grenzen, geprägt von einem offenen und polyvalenten Raumkonzept für wandelbare Arbeitswelten. Im Start-up- und Denklabor greifen Büro, Labor und Anwendungstechnik in einem abwechslungsreichen Co-Working-Space ineinander.
Text Nolax, Deon AG | Fotos Kuster Frey
Nolax versteht sich als ein chemisch-technisches Denklabor. Das Unternehmen entwickelt und verkauft laufend Start-ups, die Verbindungsprobleme auf neue, gewinnbringende Art lösen. Sobald ein Start-up marktreif ist, wird es verkauft und geht in neue Hände über. Seit Ende 2017 entwickelt das Denklabor am Hauptsitz im luzernischen Sempach Station seine Ideen im neuen Gebäude: im «nolax House», fünf Geschosse, ein Hybrid aus Beton und Holz. Das Unternehmen beschäftigt darin rund 60 Mitarbeiterinnen und Mitarbeiter in der Entwicklung, der Anwendungstechnik sowie im Marketing.
Offenes Raumkonzept
Die Bauherrschaft stellte spezifische Ansprüche an das Gebäude. Damit das Bedürfnis und der Wunsch nach einem kreativen Arbeitsumfeld und einer vielfältigen Nutzung der Räumlichkeiten erfüllt werden konnten, brauchte es planungs- und bauseits eine entsprechende räumliche, strukturelle und konstruktive Lösung.
Start-ups brauchen zum Wachsen räumliche und infrastrukturelle Flexibilität. Dem tragen die innere Struktur und die transparente und fliessende Architektur des Neubaus Rechnung. Der Hybridbau versteht sich als ein Haus ohne Grenzen – mit einem offenen und vielfältigen Raumkonzept passend für Arbeitswelten, die sich wandeln. Im Neubau greifen die Sphären Büro, Labor und Anwendungstechnik in einem abwechslungsreichen Co-Working-Space ineinander.
Grundgerüst aus Holz und Beton
Das Grundgerüst ist aus vorfabrizierten Betonstützen und Holzbalkenträgern im Verbund mit einer Ortbetondecke erstellt worden. Daraufhin folgte der Einbau der Fassade. Sie besteht aus einer grossflächigen Verglasung, die panoramaartige Ausblicke auf die Landschaft gewährt und somit in direkter Kommunikation mit der Umgebung steht.
Deon Architekten aus Luzern erhielten nach der Präqualifikation den Direktauftrag zur Umsetzung des Neubaus. Die Planung startete 2013. Die Tschopp Holzbau AG aus Hochdorf führte die Holzbauarbeiten aus. Im Januar 2016 feierte Nolax dann den offiziellen Baustart im Rahmen eines symbolischen Festaktes. Es war kein Spatenstich im klassischen Sinn: Der Baustart wurde mit dem Fällen einer Eiche zelebriert. Der alte Baum musste weichen und Platz schaffen für Neues. Eine Idee, die dem Grundgedanken des Unternehmens entspringt: Raum für Neues entsteht dort, wo Altes abgebaut wird.
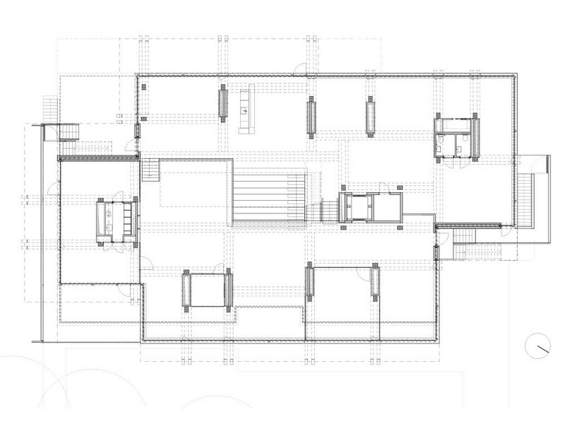
Aufgrund der Platz- und Finanzverhältnisse wurde eine mehrgeschossige Bauweise gewählt. Für eine fliessende interne Kommunikation war die Überwindung der Geschossigkeiten aber immanent wichtig und musste durch die Gebäude- und Raumstruktur ermöglicht werden. Mit den Split-Levels in Kombination mit einem Innenhof als Atrium wurde die Geschossigkeit aufgelöst und die Kommunikation über die Diagonale gefördert.
Die Haupterschliessung des Gebäudes erfolgt über den Eingang im Untergeschoss. Dort sind die Anwendungstechnik, die Zentrale der Haustechnik sowie diverse Nebenräume platziert. Die Besucher werden über eine breite Betontreppe hinauf ins Garten- beziehungsweise Erdgeschoss geführt. Hier befindet sich unter anderem die Cafeteria. Drei folgende Halbgeschosse in Split-Level-Bauweise bilden die Büro- und Arbeitslandschaft. Die darüber liegende Dachterrasse erweitert den Arbeits- und Erholungsraum mit zwei Halbgeschossen. Am höchsten Punkt im abschliessenden Halbgeschoss Nord wurde die Dachterrasse oberhalb der Labore mit entsprechender Lüftungstechnik bestückt.
Im Kern des Hauses bildet ein Atrium einen offenen Raum, der sich über alle Geschosse erstreckt und Licht vom Dach ins Gebäude führt. Im Innern verbinden Treppen, die das Atrium flankieren, die Stockwerke. Fluchtwege führen auf die aussen liegenden Terrassen und Laubengänge zu den Fluchttreppen. Ein Lift erschliesst das Haus rollstuhlgängig über sämtliche Stockwerke bis auf die Dachterrasse.
Modulare Zellstruktur
Die Gliederung der Geschosse erfolgt durch die gezielte Platzierung von Funktionszellen für Technik, Sanitär und Lager sowie von kleinen separaten Sitzungszimmern. Diese modulare Struktur ermöglicht eine grosse Flexibilität für Um- und Ausbauten und führt zu einer Symbiose aus Architektur, Tragwerk und Gebäudetechnik.
Der Gebäudeausdruck ist innen wie auch aussen durch das statische Grundgerüst geprägt. Im Inneren dominieren vorfabrizierte Betonstützen und Holzbalkenträger, die über Metallstifte miteinander verbunden sind. Die linearen Elemente entwickeln sich dreidimensional im Raum und formen sich zu einem raumprägenden, kompositen Traggerüst. Die Positionierung und Konstruktion der Träger hat sowohl statische als auch räumliche Gründe.
Kommende Erweiterungen eingerechne
Im Gebäude arbeiten Menschen in Teams, die sich laufend neu bilden. Es gibt keine Grenzen, keine Büros, keine Türen. Die Mitarbeitenden wählen jeden Tag den für sie richtigen Platz, denn es gibt auch keine fix zugeteilten Schreibtische, sondern eine Arbeits- und Begegnungslandschaft mit Büro-, Labor- und Technik-Arbeitsplätzen. Alles ist offen und transparent, die Umgebung und die Menschen sollen inspirieren. Künftige Erweiterungen sind primär integral als Raumreserven vorhanden. Zusätzlich sind Ausbauten in der Horizontalen und in der Vertikalen im Entwurf und in der Planung berücksichtigt. Die Platzierung des Gebäudes auf dem Grundstück sichert hierfür ausreichend Landreserven.
Offenes Grundstück mit Weitblick
Die Aussicht vom Grundstück bietet einen Weitblick gegen Süden auf eine Landschaft mit Alpenpanorama. Das Gebäude richtet sich nach der Besonnung, Beschattung und der Aussicht aus. Eine Reihe von Stieleichen trennt das Baufeld vom benachbarten Firmenareal. Die Erschliessung erfolgt von zwei Richtungen: von Norden vom Bahnhof her für die Fussgänger, von Süden von der Umfahrungsstrasse her für den motorisierten Verkehr. Mit dem Entscheid für den Standort Sempach Station bleiben der Gemeinde Unternehmen und Arbeitsplätze erhalten. Nicht nur die Region profitiert vom Neubau. Für die Anwohner entsteht ein direkter Nutzen durch die Neuerschliessung des Geländes. Für alle weiteren Unternehmen auf dem Industrieareal ist die Zufahrt neu über die Umfahrungsstrasse geregelt worden, was für Entlastung an anderer Stelle sorgt, da der motorisierte Werks- und Mitarbeiterverkehr wegfällt.
Das Projekt – die Fakten
Projekt: «nolax House», Neubau
Standort: Sempach (LU)
Fertigstellung: Dezember 2017
Chronologie: Direktauftrag nach Präqualifikation, Planungsbeginn 2013,
Baubeginn 2016
Bauherrschaft: Nolax AG, Sempach
Architektur und Generalplanung: Deon AG, dipl. Architekten ETH BSA, Luzern
Fachplaner Tragwerk: Dr. Schwartz Consulting AG, Zug
Fachplaner Bauphysik: RSP Bauphysik AG, Luzern
Holzbau: Tschopp Holzbau AG, Hochdorf (LU)
Baukosten BKP 1–9: CHF 16 Mio.
Gebäudevolumen SIA 416: 9700 m3
Holz: Fichte lasiert







