3/25 Wohnen
WELT.WEIT
Sparrende Aussichten
Eigentlich schade, dass man Dachstühle normalerweise von aussen nicht sieht. Bei diesem Ferienhaus in der norddeutschen Uckermark ist das anders.
Text Susanne Lieber | Fotos Tobias König, Michael Romstöck | Pläne Sigurd Larsen
Was in der Regel im Verborgenen liegt, wurde bei diesem Haus bewusst offengelegt: die hölzerne Dachkonstruktion mit Sparren. Statt Ziegel bildet hier Glas beziehungsweise Polycarbonat die Dachhaut, die vor Witterung schützt und gleichzeitig Ein- und Ausblicke gewährt. Für die Dachfläche Richtung Strasse wurden transluzente Polycarbonatplatten verwendet, für die gegenüberliegende Dachfläche transparentes Glas. So bietet sich von dort aus ein fantastischer 180-Grad-Blick auf die uckermärkische Landschaft, die sich nordöstlich von Berlin erstreckt. Schaut man von aussen auf das Gebäude, lässt sich der 70 Quadratmeter grosse Dachraum – definiert durch seine Sparrenlage – in seiner Gesamtheit erfassen. Genutzt wird dieser ungedämmte Teil des Hauses als Gewächshaus – oder als Atelier im Frühling und Herbst, wenn die Temperaturen etwas gemässigter sind.
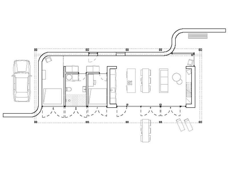
Das 113 Quadratmeter grosse Erdgeschoss ist in mehrere Räume unterteilt: einen gemütlichen Wohnbereich mit offener Küche, zwei kleine Schlafzimmer (sie sind gerade mal so breit, wie das Bett lang ist) und ein Bad. Alle Räume orientieren sich dabei nach Westen und öffnen sich mit doppelflügeligen Glastüren zur überdachten Terrasse. Rückseitig zur Strasse schottet sich der Bau mit einer Fassade aus Sichtmauerwerk ab. Die Wand läuft dabei jeweils in Form einer geschwungenen Mauer im Aussenbereich weiter und definiert an einem Ende eine windgeschützte Sitzecke, am anderen Ende einen Autostellplatz.
Entworfen wurde das Gebäude vom Berliner Architektur- und Designbüro Sigurd Larsen – als Wochenenddomizil für eine Familie. Allerdings kann das «Glashaus», ausgelegt für vier Personen, auch gemietet werden.
sigurdlarsen.com, dasglas.haus






