2/2023 Ansichten
FOKUS.THEMA
Wenn die Fassade Wellen wirft
Wo Kinder sind, ist Bewegung. Und wo Bewegung ist, ist Leben. Und genau das hat in einem zuvor brachliegenden Teil des Schulgeländes Werd in Adliswil wieder Einzug gehalten – mit über 40 Sprösslingen im neuen Doppelkindergarten.
Text Susanne Lieber | Fotos Andreas Buschmann | Pläne Reichel Architekten
«Wo heute der neue Doppelkindergarten Werd ist, befand sich vorher ein Pfadiheim, das nicht mehr genutzt wurde», schildert Architektin Christiane Reichel. «Es war eine verwilderte Ecke auf dem Schulareal, etwas abseits gelegen.» Davon kann heute nicht mehr die Rede sein. Der neu bebaute Bereich wurde mit dem Kindergarten, der vor knapp zwei Jahren vom Zürcher Büro Reichel Architekten fertiggestellt wurde, sichtlich aufgewertet. Seitdem ist auch dieser Teil des Schulgeländes wieder belebt und erfreut sich grosser Beliebtheit – was die Zahl der angemeldeten Kinder beweist.
Schon kurz nach Fertigstellung zeichnete sich ab, dass es mit dem Platz knapp werden könnte. Ausgelegt sind die Klassenräume auf je zwanzig Kinder, am Ende wurden es einige mehr. «Es fehlten entsprechend Garderobenplätze», resümiert die Architektin. Und so musste nachgerüstet werden, was allerdings kein grosses Problem war. Kurzerhand wurde der Platz zwischen den runden Stützen im Eingangsbereich genutzt, um weitere Jacken und Schuhe verstauen zu können. Wie bei allen Möbeln handelt es sich auch bei der Garderobe um eine massgefertigte Schreinerarbeit – was Christiane Reichel sehr wichtig war: «Wir wollten keine Möbel von der Stange einfach in die Räume stellen, sondern die Einbauten direkt in unseren Entwurf integrieren.»
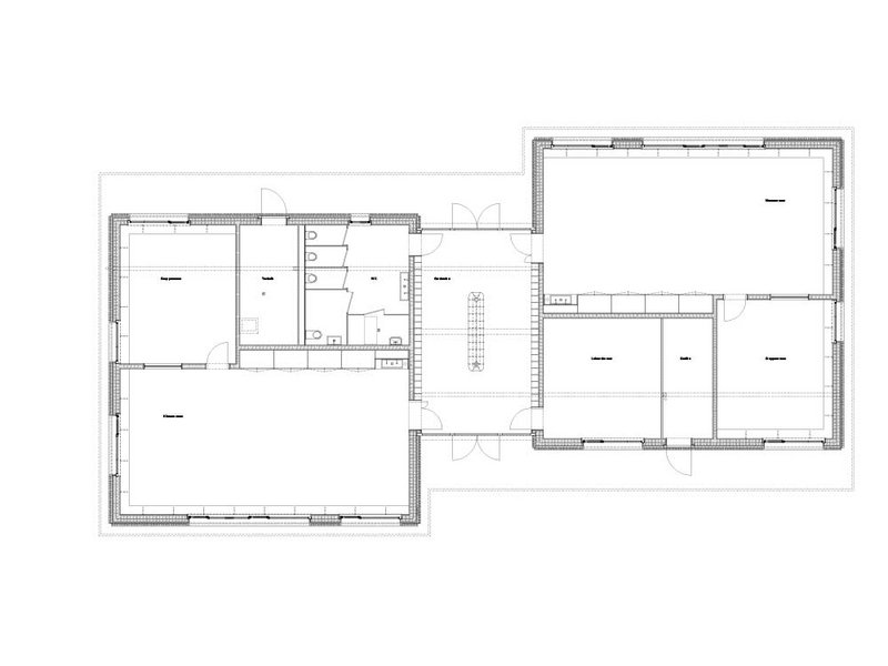
Mit grossen Augen durch die Wand
Gebildet wird der Doppelkindergarten aus zwei Baukörpern, die etwas versetzt zueinanderstehen. Dadurch ist in der Mitte ein Eingangs- und Garderobenbereich definiert. Von dort aus gelangt man links und rechts in die Klassentrakte mit je einem Klassenzimmer und einem Gruppenraum. Zwischen den Räumen sorgt ein grosses Verbindungsfenster für Durch- und Überblick, sollten die Kinder beide Räume gleichzeitig nutzen. Die Bullaugen sind riesig, haben einen Durchmesser von 1,70 Metern. Durch ihre geringe Brüstungshöhe können auch die Kleinen problemlos in den Nebenraum schauen, wobei der Fensterrahmen durchaus auch zum Hinsetzen taugt.
Natürlich aus Holz
Dass es sich bei dem Gebäude um einen vorfabrizierten Holzbau handeln sollte, war von der Stadt Adliswil als Bauherrschaft ausdrücklich erwünscht. Die Vorteile liegen auf der Hand: Der Präzisionsgrad bei der Vorfertigung und Montage ist äusserst hoch, und die Bauzeit gegenüber einem Massivbau einfach unschlagbar. Umgesetzt wurde der Entwurf des Zürcher Architekturbüros von der Häring AG in Eiken (AG), rund sechzig Kilometer von Adliswil entfernt. Der Betrieb wurde jedoch nicht nur mit der Fertigung des Holzelementbaus beauftragt, sondern agierte hier auch als Generalunternehmer.
Der Kindergarten umfasst neben den Klassenzimmern und Gruppenräumen auch ein Lehrerzimmer, zwei kleinere Räume für Geräte und Technik sowie Toiletten. Insgesamt wurden im Gebäude 1550 Quadratmeter Dreischichtplatten verwendet, 840 Quadratmeter davon an Wänden und Decken in Sichtqualität, wobei das Holz für eine zurückhaltende Farbigkeit sorgt: «Ein Kindergarten wird schnell bunt, sobald an den Wänden die ersten Bilder hängen. Darum haben wir entschieden, dass wir das Holz einfach in seiner Natürlichkeit zeigen», so die Architektin. Lediglich bei den Linoleumböden kam etwas Farbe ins Spiel: Ein Klassentrakt ist grün, der andere blau. Für den Eingangsbereich – der übrigens von zwei Gebäudeseiten her erschlossen wird – fiel der Entscheid auf ein neutrales Grau.
Dynamische Dachlandschaft und fliessende Fassade
Besonders prägnant gibt sich der Bau von aussen. Das wird bereits beim Pultdach deutlich, das sich mit einer gegenläufigen Bewegung über die beiden Gebäudeteile legt. Der Transport der vorgefertigten Holzelemente wurde hierbei zur logistischen Herausforderung. «Das Dach mit einer Spannweite von zwölf Metern durch die engen Quartierstrassen zu manövrieren, war wirklich nicht einfach», merkt Christiane Reichel an. «Mit der Grösse der sperrigen Bauteile kamen wir wirklich ans Limit.» Zunächst hatten das Architekturbüro und die Stadt Adliswil in Sachen Dachform unterschiedliche Möglichkeiten in Erwägung gezogen. So waren mitunter Sattel- und Walmdachvarianten im Gespräch. Auch hinsichtlich Dachneigung gab es mehrere Optionen, doch am Schluss hat das dynamische Pultdach das Rennen gemacht.
Vom Kindergarten zur Sihl sind es nur wenige Meter. Die Nähe zum Fluss hinterliess deshalb beim Entwurf sichtbare Spuren – konkret gesagt, was die Gestaltung der 220 Quadratmeter grossen Fassade angeht. Sie besteht aus 148 Hohlkasten-Wandelementen, beplankt mit einer Lattung aus wellenförmig gefrästem Tannenholz. Eine Referenz der Architekten an das Wasser der Sihl, an angeschwemmtes Treibholz, aber auch an geflochtene Reusen, mit denen man früher Fische fing. Die Oberfläche des Weisstannenholzes wurde hierbei mit einer Vorvergrauungslasur versehen.
Mit gutem Vorsatz
Der Doppelkindergarten Werd ist ein Ort, an dem sich Kinder wohlfühlen können. Die Räume sind lichtdurchflutet, hell und freundlich gestaltet. Zudem wurde beim Entwurf des Gebäudes auf eine nachhaltige Bauweise und auf umweltverträgliche Materialien gesetzt. Das Projekt ist als Minergie-Eco-zertifizierter Holzbau geplant und ausgeführt worden. «Wir haben beispielsweise keine lösungsmittelhaltigen Anstriche verwendet, und das Holz stammt aus der Region. Zudem besteht der Gebäudesockel, der den Holzbau vor Nässe schützt, aus recyceltem Beton», so die Architektin. Doch trotz aller Bemühungen reichte es am Ende nicht, den Kindergarten mit entsprechendem Zertifikat auszuweisen. Dafür fehlte schlicht und ergreifend die Photovoltaikanlage auf dem Dach – sie wurde aus Kostengründen eingespart. Doch den Wohlfühlfaktor im Gebäude schmälert das nicht.
Zeitraffervideo, das zeigt, wie der Bau entstanden ist.
reichel-architekten.ch, haring.ch
Christiane Reichel
Zusammen mit Hannes Reichel ist Christiane Reichel Gründerin und Mitinhaberin des Büros Reichel Architekten, das 2014 in Zürich eröffnet wurde und erst kürzlich in den Kreis 1 gezügelt ist. Christiane Reichel hat in Darmstadt (DE) sowie an der ETH in Zürich und an der École Polytechnique Fédérale in Lausanne (EPFL) studiert. Das derzeit neunköpfige Architektenteam plant und realisiert Bauaufgaben für öffentliche und private Auftraggeber. reichel-architekten.ch






