Holzbau Schweiz Architektur

Bauen und leben mit Holz – Das Fachmagazin von Holzbau Schweiz

1/26 Luxus

BAU.WERK

Obenauf im Chreis Cheib

Nichts lässt von aussen erahnen, dass es sich bei dieser Aufstockung in Zürich um einen Holzbau handelt. Schöne Überraschung!

Text Susanne Lieber | Fotos Gerry Amstutz | Pläne Baukombinat GmbH

D er Kreis Vier – unter Insidern einfach Chreis Cheib genannt – gilt zurecht als buntester Stadtteil Zürichs. Nirgendwo sonst tummeln sich so viele Menschen aus unterschiedlichsten Milieus wie hier: Kunstschaffende, Touristen, Studierende, junge Familien, Prostituierte, Handwerkerinnen und Handwerker, Junkies, Hipster … Und genau hier – zwischen Bahngleisen, Szenekneipen und Parkanlage – steht ein Gebäude, das widerspiegelt, wie Koexistenz trotz Unterschiedlichkeit funktioniert: ein viergeschossiger Gründerzeitbau aus dem Jahr 1894, der mit einem modernen, stahlverkleideten Holzbau aufgestockt wurde. Ein mutig zur Schau gestellter architektonischer Bruch, wobei dieser bestens ins urbane Bild passt. 


Architektonischer Kontrast
In einer kleinen Stichstrasse gelegen – keine 50 Meter vom Gleisfeld des Hauptbahnhofs entfernt – wurde der historische Bestandsbau nach oben hin erweitert, um zusätzlichen Wohnraum zu schaffen. Wohnraum, an dem es in ganz Zürich mangelt. So wundert es auch nicht, dass zurzeit eine regelrechte Aufstockungswelle über die Stadt rollt. Wobei das Bauprojekt in der Gamperstrasse geradezu Vorbildcharakter in Sachen vertikaler Verdichtung hat: Der Bestandsbau wurde nämlich aufgestockt, ohne dabei in seiner Substanz tangiert zu werden. So konnten alle Mieterinnen und Mieter während der gesamten Bauphase dort wohnen bleiben. Was auch erklärtes Ziel des Zürcher Bauherrenpaars war. Ebenso galt die Prämisse, dass die neuen Mieteinheiten möglichst Familien- und WG-tauglich sind. Und so ist jetzt die bunte Hausgemeinschaft um neun Bewohnerinnen und Bewohner reicher.

Zwei Faktoren waren besonders entscheidend, um die Aufstockung des Gebäudes im bewohnten Zustand realisieren zu können: Zum einen fiel die Wahl auf eine leichte Holzkonstruktion, zum anderen wurde bei der Grundrissplanung darauf geachtet, die vorhandene Baustruktur optimal zur Lastabtragung zu nutzen. Tatkräftig unterstützt wurde das Bauherrenpaar bei der Umsetzung von zwei jungen Zürcher Architekten – Leonce Gruber und Moritz Köhler – sowie von dem Holzbauunternehmen Burkart AG trilegno aus Auw (AG). 
 

Aufstockung ohne Ertüchtigung
«Wir haben so gut wie nichts am Bestandsgebäude verändert», erklärt Moritz Köhler bei einem Rundgang. Lediglich die Haustüre, die in den 1960er Jahren um wenige Meter ins Gebäudeinnere versetzt worden war – so entstand ein überdachter Eingangsbereich – wurde in ihre ursprüngliche Position zurückversetzt. Auch das Treppenhaus erfuhr nur eine minimale Auffrischung: einen neuen Anstrich der Wohnungstüren und einen neuen Verputz, das wars. Bei genauerer Betrachtung der Wand lässt sich hier dennoch eine Raffinesse ausmachen: eine feine Nahtstelle im Putz, und zwar zwischen dem vierten und fünften Geschoss – ein subtiler Hinweis darauf, dass dort die Aufstockung in Holzbauweise beginnt.

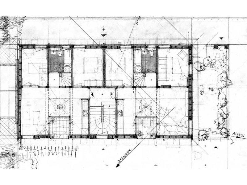
Vom fünften Geschoss aus werden die zwei neuen Maisonettewohnungen erschlossen. Die Grundrisse sind hierbei (annähernd) identisch, jedoch spiegelverkehrt: Im unteren Geschoss befinden sich eine offene Küche, ein Wohn-/Essbereich mit verglaster Loggia sowie zwei Zimmer, zwischen denen ein Bad und der Treppenaufgang ins Attikageschoss liegen. Eines dieser beiden Zimmer kann bei Bedarf über eine deckenhohe Doppelflügeltüre dem offenen Wohnbereich zugeschaltet werden.

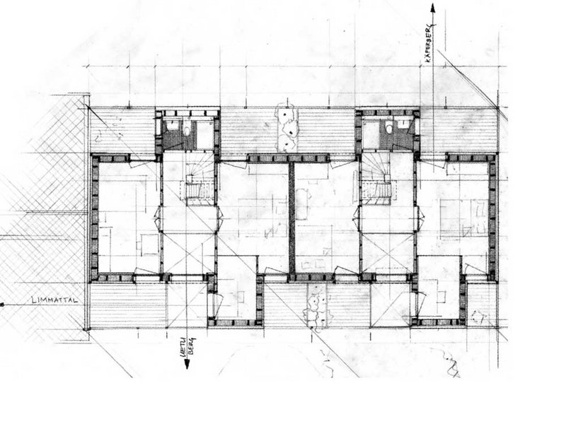
Das Attikageschoss umfasst ein zweites Bad mit Dusche und eine kleine Galerie, von der man in zwei Schlafzimmer gelangt. Das Besondere an diesen Zimmern: Sie führen jeweils auf zwei Terrassen hinaus – eine davon ist auf der Nordostseite des Gebäudes, die andere auf der Südwestseite. So ist im Innenraum für eine optimale Belichtung gesorgt und der Blick kann in zwei Himmelsrichtungen schweifen. Zu toppen ist die Aussicht nur noch durch den 360-Grad-Rundumblick auf der Dachterrasse, die von den Wohnungen jeweils über eine steile, fix eingebaute Treppe und einen hydraulischen Dachausstieg erreichbar ist. 
 

Holzkonstruktion auf hohem Niveau
Die Dachaufstockung basiert auf einem einfachen, hölzernen Tragwerk, das zur Lastabtragung die Aussenwände und die tragenden Innenwände des Bestandsgebäudes nutzt. «In der unteren Etage der Maisonettewohnungen verlaufen die Längswände analog zu den Wänden der Altbauwohnung darunter», erklärt Architekt Moritz Köhler und ergänzt: «Allerdings nicht linear, sondern auf sechs Punktfundamenten.» Auch die Aussenwände des Gründerzeitbaus wurden statisch genutzt. Auf der alten Holzbalkendecke hingegen lastet kein Gewicht.

Bevor das zweigeschossige Holzkonstrukt auf das alte Gemäuer aufgesetzt werden konnte, wurde erst der alte Dachstuhl abgetragen. Wobei es zuvor noch galt, den Estrichboden provisorisch abzudichten und an die Fallrohre anzuschliessen, was die Spenglerei Baratovic Bedachungen übernahm. Dass der Betrieb direkt gegenüber der Baustelle liegt, war eine glückliche Fügung.

Um das Ausgangsniveau für die Aufstockung auf die richtige Höhe zu bringen – bestimmend war hierfür das Schrittmass der Treppe – wurde die bestehende Deckenkonstruktion mit Granulat aufgeschüttet. Was gleichzeitig ein Vorteil für die Schalldämmung ist: «Im Geschoss unter der Maisonettewohnung hört man angeblich überhaupt nichts», weiss Architekt Moritz Köhler aus sicherer Quelle. Der eigentliche Bodenaufbau besteht aus Massivholzdeckenelementen, Dämmplatten, Fussbodenheizung und Anhydrit-Estrich (geschliffen und versiegelt). Für das Dach kam eine Brettstapeldecke mit luftdichten Stössen und Wärmedämmplatten zum Einsatz.

Bei den Wänden handelt es sich fast ausschliesslich um ausgedämmte Holzständerkonstruktionen (mit Ausnahme weniger CLT-Massivholzwände), wobei die Wand zum Nachbargebäude als gekapselte Brandschutzwand ausgebildet ist. Mit drei Tonnen ist diese das schwerste von allen Bauteilen und ein echtes Ungetüm, das dementsprechend mit einem Spezialkran auf das Gebäude gewuchtet werden musste.

Die Fassadenflächen sind mit recycelten Stahlplatten oder mit Streckmetallgittern beplankt. Das rötlich-grau-changierende Material integriert sich dabei gut in die umliegende Dachlandschaft. Zwischen dem Metall lassen sich auch einige Bereiche mit schwarzer Holzverkleidung ausmachen. 


Planbarkeit und Verlässlichkeit
Auch eineinhalb Jahre nach Fertigstellung sind die Architekten mit ihrem Erstlingswerk rundum zufrieden – und voll des Lobes für das Holzbauunternehmen Burkart AG trilegno. «Es war eine unglaublich tolle Zusammen­arbeit», schwärmt Moritz Köhler. Der Zimmereibetrieb hätte die Aufstockung nicht nur im gewünschten Zeitrahmen umgesetzt, sondern bei der Arbeit auch eine hohe Qualität an den Tag gelegt. «Am Ende war das Projekt sogar um einige Tausend Franken günstiger als offeriert! Eine solche Planbarkeit und Verlässlichkeit kenne ich vom Massivbau nicht», so das Fazit des Architekten.

Die Begeisterung für den Holzbau lässt also hoffen, dass die beiden Jungarchitekten dem Thema «Bauen mit Holz» weiterhin treu bleiben – so wie ihrem Ansatz, Entwurfspläne noch von Hand zu zeichnen. 
trilegno.ch
 

Das Projekt – die Fakten

Projekt: Aufstockung eines Mehrfamilienhauses (1894) mit zwei Maisonettewohnungen
Fertigstellung: Dezember 2024
Bauherrschaft: privat
Architektur: Baukombinat GmbH, Zürich; Projektleiter: Leonce Gruber, Moritz Köhler
Bauingenieur (Bestandsgebäude): Schärli + Oettli AG, Zürich 
Holzbauingenieur (Aufstockung): Timbatec Holzbauingenieure Schweiz AG, Zürich 
Holzbau: Burkart AG trilegno, Auw (AG)
Dach- und Spenglerarbeiten: Baratovic Bedachungen, Zürich
Konstruktion / Tragwerk: Holzständerbau (z. T. auch CLT-Massivholzwände), 
Massivholzdecke, Brettstapeldecke (Dach)
Bruttogeschossfläche: 280 m2
Gebäudevolumen: 825 m3
Gesamtkosten: CHF 1,4 Mio. (davon Holzbau etwa CHF 330 000)
Besonderheiten: Gebäude blieb in Bauphase durchgängig bewohnt; Zusammenarbeit mit Denkmalpflege (Quartiererhaltungszone); Erstlingswerk des Architekturbüros Baukombinat
 


Baukombinat GmbH

Kennengelernt haben sich Moritz Köhler und Leonce Gruber (Sohn des Bauherrenpaars) während ihrer Ausbildung. Moritz Köhler studierte damals Architektur an der ETH in Zürich, Leonce Gruber an der ZHAW in Winterthur. Der Auftrag für die Gebäudeaufstockung in 
Zürich brachte die beiden 2018 zusammen, also noch während ihres Studiums. Bis zur Umsetzung ihres Entwurfs dauerte es aber etwas länger – unter anderem, weil es immer wieder zu Verzögerungen bei den Baubewilligungen kam. Doch der lange Atem hat sich gelohnt: 
Im Dezember 2024 wurde die Aufstockung des Gebäudes fertiggestellt. baukombinat.ch

Holzbau Schweiz Magazin

Das Mitglieder- und Verbandsmagazin von Holzbau Schweiz